Buenas noches a todos los compañeros que forman parte de nuestra web de planillas Excel para ingeniería civil, les presento una planilla Excel que les ayuda con el diseño de zapatas aisladas, esta es una propuesta diferente a las planillas actuales que llevan relación con el mismo tema que se encuentran dentro el blog.
La planilla consta de las siguientes partes para el diseño:
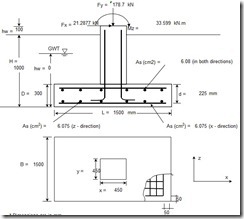
- Datos de ingreso:
Cargas
Nivel de fundación
Dimensiones de pedestal
Resistencia del concreto
Resistencia del acero
Presión de suelo permisible
Angulo base de fricción interna del suelo
- Carga Ultima
- Dimensiones aproximadas
- Profundidad aproximada
- Peso de fundación
- Perfil de tensión neta
-Revisión del diseño:
Estabilidad contra aberturas
Estabilidad contra deslizamientos
Revisión de corte longitudinal
Revisión de perforación
- Calculo del refuerzo
También les pueden interesar las siguientes planillas Excel:
- Zapatas Aisladas Rígidas a Flexión Recta
- Diseño de zapata aislada ACI 308-05
- Diseño de zapatas aisladas
Espero que este aporte sea de utilidad para aquellos interesados en estos temas de ingeniería civil, saludamos a todos los miembros de la comunidad...esperamos sus comentarios...no olviden compartir nuestras publicaciones en sus redes sociales...hasta otra oportunidad.
Descarga: Aquí
